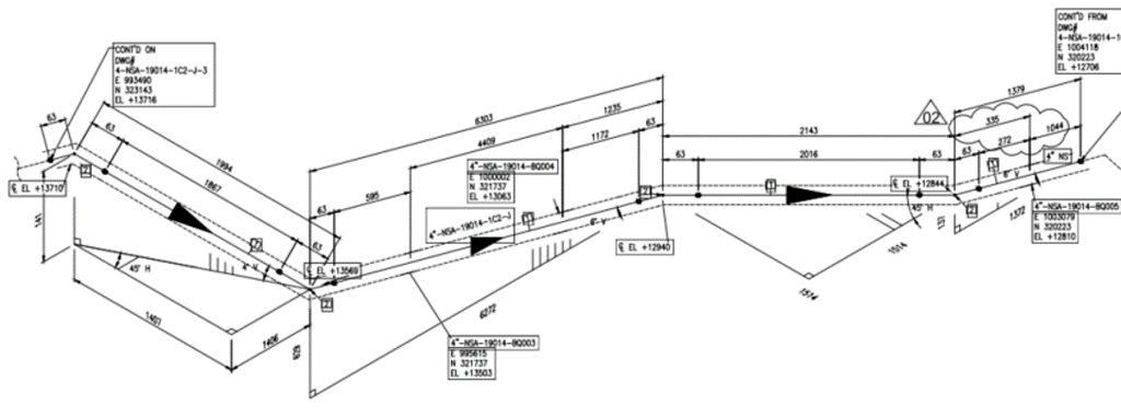
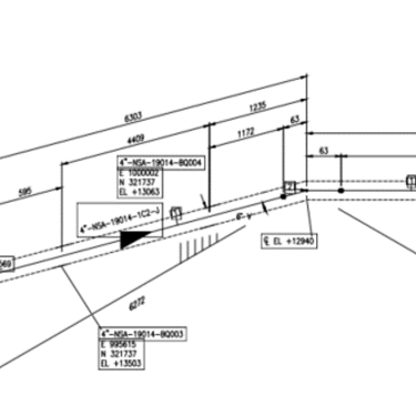
Tackling Complex Isometric Drawings: How STRESS-BIM3D Simplifies Non-Orthogonal Pipe Layouts
Creating stress isometrics for non-orthogonal pipes — with slopes and combined XYZ orientations — is notoriously challenging, often requiring multiple drawings, intense concentration, and spatial reasoning. This post highlights how STRESS-BIM3D streamlines the process by regenerating a true-scale geometric clone of the model, enabling clear visualization in Navisworks and reducing errors caused by manual edits. A preview of upcoming features also hints at even greater control and coordination for stress engineers.
5/12/20241 min read

